1. ホーム
  2. 物件検索
  3. 物件詳細

中古一戸建て金沢市高尾1丁目55

1 /3

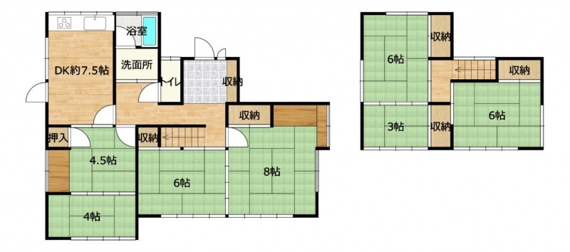
【間取り】

2,049万円

物件概要

所在地
金沢市高尾1丁目55
価格
2,049 万円
交通

バス/北陸鉄道 バス停窪南 まで 徒歩3分

土地面積
公簿 247.53㎡ (74.87坪)
建物面積
109.28㎡ (33.05坪)
間取り
7DK
築年数
1980年 (昭和55) 10月
築45年
建ぺい率
60%
容積率
200%
土地権利
所有権
構造
木造
小学校区
伏見台 (600m)
中学校区
高尾台 (900m)
私道負担
地目
宅地
現況
引渡時期
即時
駐車場
有 2台
上水道
公共
下水道
公共
ガス
プロパン個別
都市計画
市街化区域
用途地域
準住居
設備・条件
備考
◎山側環状が近くてアクセス良好!
◆未登記建物あり:物置 約4㎡
取引態様
仲介
周辺地図を確認する

(弊社管理番号: 3003873)

【更新日】2026年05月15日

【次回更新日】2026年06月15日

その他周辺物件

この物件は507の方が
興味を持っています

お気軽にご来店くださいShop Info

プロによる丁寧なサポート

お店でご相談ください!

株式会社 建築工房坂本

〒920-0371 石川県金沢市下安原町西258番地5

電話番号:076-282-7810 営業時間:9:00〜18:00

金沢市・白山市の不動産情報は、じもとちへ

HPを見たと言って、お気軽にお問い合わせください!

無料相談・お電話窓口

076-282-7810 076-282-7810

〒920-0371 石川県金沢市下安原町西258番地5 営業時間:9:00〜18:00 定休日:日曜日

オンライ相談始めました!